- Woonoppervlakte
- Circa 128 m²
- Perceeloppervlakte
- Circa 369 m²
- Bouwjaar
- Gebouwd in 1969
- Aantal kamers
- 6 kamers (5 slaapkamers)
Ruime hoekwoning met open keuken, gezellige woonkamer, en parkeergelegenheid voor twee auto's op eigen terrein in Apeldoorn!
Welkom bij Operettestraat 3, een ruime gezinswoning die perfect is voor een samengesteld gezin. Met een woonoppervlakte van 128m2 biedt deze goed onderhouden hoekwoning voldoende ruimte voor comfortabel wonen. De woning beschikt over een energielabel C, wat bijdraagt aan lagere energiekosten en meer comfort.
Stap binnen in de lichte en uitnodigende woonkamer, waar een open keuken naadloos overgaat in de leefruimte. Deze open opstelling zorgt ervoor dat je tijdens het koken contact kunt houden met familie en vrienden, waardoor koken een sociale ervaring wordt. De keuken is smaakvol ingericht met moderne apparatuur uit 2021, waaronder een luxe kookplaat, een ruime koelkast en een praktische vaatwasser.
De woning biedt parkeergelegenheid voor twee auto's op eigen terrein, wat een zeldzaam voordeel is in deze buurt. Daarnaast beschikt de woning over een ruime garage, ideaal voor extra opslagruimte of om je auto veilig te parkeren.
Geniet van de ruime achtertuin op het zuidwesten, waardoor je de hele middag kunt genieten van de zon. De tuin is prachtig aangelegd en biedt voldoende ruimte voor ontspanning, spelen en tuinieren. Een gezellige veranda met openhaard maakt het plaatje compleet en biedt een ideale plek voor zomerse avonden met familie en vrienden.
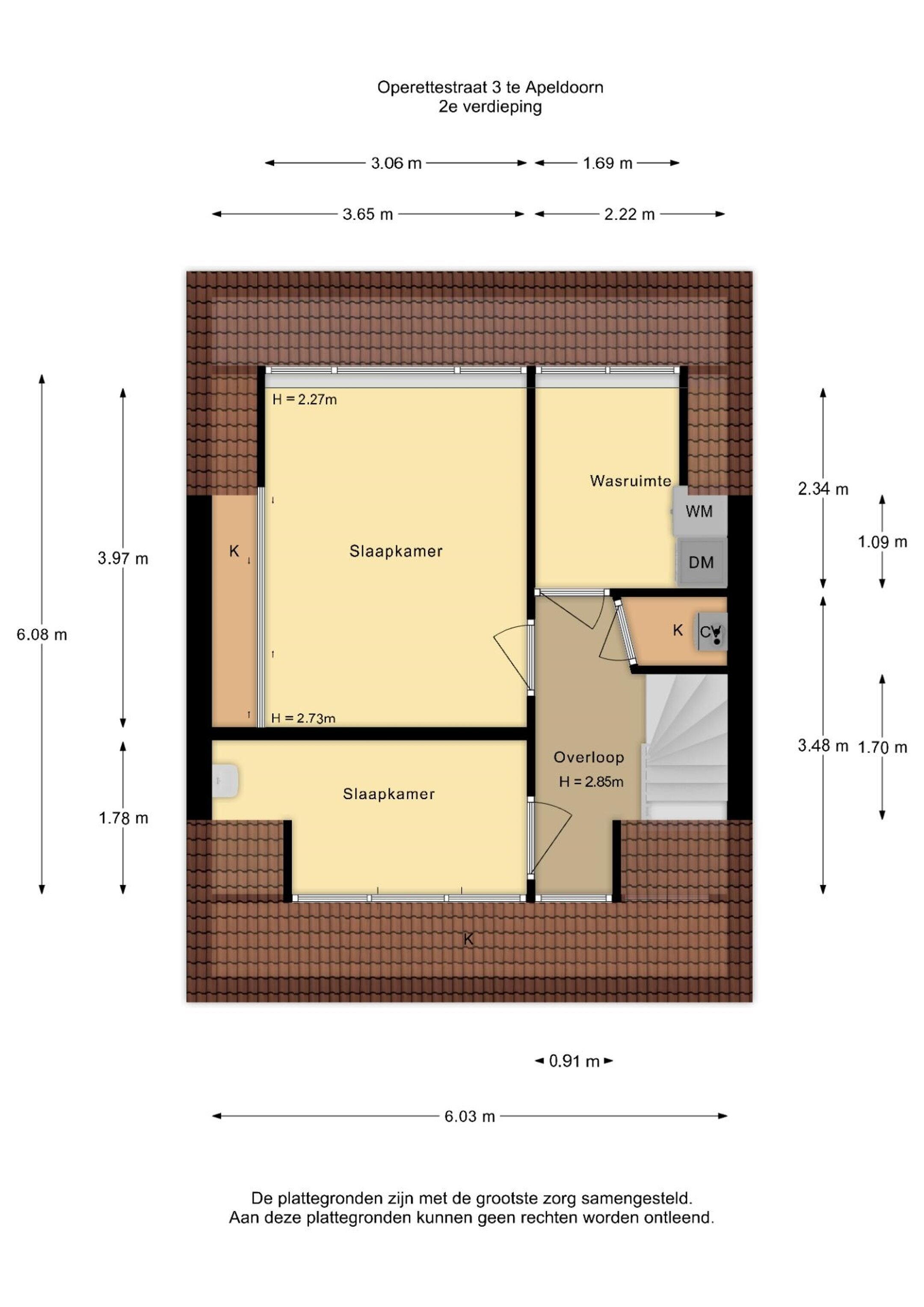
Met maar liefst vijf comfortabele slaapkamers is er voldoende ruimte voor een groot gezin, inclusief samengestelde gezinnen. Elke kamer is goed bemeten en biedt voldoende ruimte voor persoonlijke inrichting. Een aparte waskamer draagt bij aan het gemak en de organisatie van het dagelijkse huishouden.
De buurt rond Operettestraat 3 staat bekend om zijn vriendelijke sfeer en de nabijheid van voorzieningen. Op loopafstand vind je diverse scholen, supermarkten en lokale winkels, waardoor het gemakkelijk is om alles binnen handbereik te hebben. Voor ontspanning en recreatie zijn er ook groene parken in de buurt, ideaal voor een wandeling of om kinderen te laten spelen.
De ligging is centraal en goed bereikbaar met het openbaar vervoer, terwijl het bruisende centrum van Apeldoorn slechts een korte rit verwijderd is. Kortom, Operettestraat 3 biedt niet alleen een prachtige woning, maar ook een heerlijke omgeving om te wonen, speciaal ontworpen voor het moderne samengestelde gezin.
Kom zelf de sfeer proeven en ontdek de mogelijkheden van Operettestraat 3. Neem vandaag nog contact met ons op voor een bezichtiging
Overdracht
- Vraagprijs
- € 495.000 k.k.
- Status
- Verkocht
Bouw
- Object type
- Eengezinswoning, hoekwoning
- Soort bouw
- Bestaande bouw
- Bouwjaar
- 1969
- Soort dak
- Zadeldak bedekt met pannen
Oppervlakte en inhoud
- Woonoppervlakte
- 128 m²
- Perceeloppervlakte
- 369 m²
- Inhoud
- 419 m³
- Externe bergruimte
- 22 m²
Indeling
- Aantal kamers
- 6 kamers (5 slaapkamers)
- Aantal badkamers
- 1 badkamer en 2 aparte toiletten
- Badkamervoorzieningen
- Douche, wastafel, en wastafelmeubel
- Aantal woonlagen
- 2 woonlagen en een zolder
- Voorzieningen
- Glasvezelkabel, natuurlijke ventilatie, en TV kabel
Energie
- Energielabel
- C
- Energielabel registratie
- 21-03-2025
- Isolatie
- Dakisolatie, dubbel glas, hr-glas en muurisolatie
- Verwarming
- Cv-ketel
Buitenruimte
- Ligging
- In woonwijk
- Tuin
- Achtertuin, voortuin en zijtuin
- Afmetingen achtertuin
- 165 m² (15,00 meter diep en 11,00 meter breed)
- ligging tuin
- Gelegen op het zuidwesten bereikbaar via achterom
Garage
- Soort garage
- Aangebouwde stenen garage
Parkeergelegenheid
- Soort parkeergelegenheid
- Op eigen terrein
Energieverbruik in Apeldoorn
Energielabel deze woning
Energielabel C
Publicatie energielabel: 21-03-2025
Stroomverbruik per jaar
(Gemiddelde hoekwoning in Apeldoorn)
Gasverbruik per jaar
(Gemiddelde hoekwoning in Apeldoorn)
* Cijfers zijn afkomstig van het CBS en bedoeld als indicatie en kunnen verschillen voor deze woning
Indicatie hypotheeklasten
Eigen inleg:
Spaargeld / overwaarde
Rente:
Laagste 10-jaars rente
Laagste 10-jaars rente
2,75% - Centraal Beheer Groen... - NHG
3,04% - Argenta Groen Hypothee... - 80%
Laagste 20-jaars rente
3,18% - Argenta Groen Hypothee... - NHG
3,39% - Argenta Groen Hypothee... - 80%
Laagste 30-jaars rente
3,35% - Argenta Groen Hypothee... - NHG
3,56% - Argenta Groen Hypothee... - 80%
Hypotheek:
Bruto maandlasten: € 0 p/m
Netto maandlasten: € 0 p/m
Hoe berekenen we dit?
Het rentepercentage is gebaseerd op de laagste 10 jaars vaste rente voor één hypotheekdeel. De vermelde rente (3.04% zonder NHG) is gecontroleerd op 07-11-2025. Deze berekening is gebaseerd op een annuïteitenhypotheek die volledig wordt afgelost, waarbij de maandlasten gedurende de gehele looptijd gelijk blijven. De werkelijke rente en netto maandlasten kunnen variëren, afhankelijk van uw persoonlijke situatie en de hypotheekverstrekker. Raadpleeg een financieel adviseur voor een nauwkeurige berekening en advies. Aan deze berekening kunnen geen rechten worden ontleend; het dient enkel als indicatie.
Documentatie
Kadastrale kaart
Leefomgeving
Lijstvanzaken-3292
Vragenlijstb
67e165ca2bac4
BAG uittreksel
Plattegronden PDF
Brochure
WOZ waarderapport
Bezoek onze website
Bezichtiging
Bod uitbrengen
Waardebepaling
Zoekopdracht
Alles downloaden
Zonnegrenzen bekijken
Op de kaart
Inwoners in Apeldoorn
Cijfers voor postcodegebied 7323
- Totaal aantal inwoners
- 12510 inwoners
- Mannen
- 49%
- Vrouwen
- 51%
Inwoners in Apeldoorn
Cijfers voor postcodegebied 7323
- tot 15 jaar
- 22%
- 15 tot 25 jaar
- 11%
- 25 tot 35 jaar
- 27%
- 45 tot 65 jaar
- 23%
- 65 en ouder
- 17%
Huishoudens in Apeldoorn
Cijfers voor postcodegebied 7323
- Eenpersoons zonder kinderen
- 32%
- Meerpersoons zonder kinderen
- 26%
- Huishoudens zonder kinderen
- 58%
Huishoudens in Apeldoorn
Cijfers voor postcodegebied 7323
- Huishoudens met één kind
- 10%
- Huishoudens met meerdere kinderen
- 33%
- Huishoudens met kinderen
- 43%
Woningen in Apeldoorn
Cijfers voor postcodegebied 7323
- Woningen voor 1945
- 1%
- Woningen tussen 1945 en 1965
- 1%
- Woningen tussen 1965 en 1975
- 54%
- Woningen tussen 1975 en 1985
- 3%
- Woningen tussen 1985 en 1995
- 2%
Woningen in Apeldoorn
Cijfers voor postcodegebied 7323
- Woningen tussen 1995 en 2005
- 3%
- Woningen tussen 2005 en 2015
- 23%
- Woningen na 2015
- 13%
- Huurwoningen
- 50%
- Koopwoningen
- 50%
Overige in Apeldoorn
Cijfers voor postcodegebied 7323
- Gemiddelde WOZ waarde
- € 242.000,-
- Personen onder de 65 met uitkering
- 11%
Overige in Apeldoorn
Cijfers voor postcodegebied 7323
- Adressen per km²
- 1663
- Stedelijkheid (schaal 1 op 5)
- 80%
Indien u vragen heeft of u wilt een bezichtiging inplannen, dan kunt u gebruik maken van het formulier hiernaast. Er zal daarna op korte termijn contact met u worden opgenomen.
De Eglantier 404
7329 DL, Apeldoorn
055 202 00 10 apeldoorn@wittewoningmakelaars.nl www.wittewoningmakelaars.nlContact opnemen
WitteWoning makelaars Apeldoorn
Uw woning verkopen kan natuurlijk bij iedere willekeurige makelaar, waarom dan toch kiezen voor WitteWoning Makelaars.
WITTEWONING MAKELAARS BIEDT U BIJ ALLE DIENSTVERLENING ALTIJD DE BESTE SERVICE VOOR DE SCHERPSTE PRIJS VAN NEDERLAND
Hierbij regelen wij het gehele traject van A tot Z. Van opname van de woning tot sleutel overdracht. Alles wordt geregeld, en u wordt hierbij zoveel mogelijk ontlast of begeleid.
Wilt u zelf ook uw steentje bijdragen, door bijvoorbeeld zelf de bezichtigingen met aspirant kopers te verzorgen, dan kunnen we een lagere courtage bij verkoop met u overeenkomen*
Vanzelfsprekend komt u woning niet alleen op onze website te staan, maar ook wordt deze volledig geplaatst op Funda, onze eigen website en een aantal andere sites. Verder zijn er nog veel websites die ons aanbod spyderen waardoor uw woning terug te vinden is op een groot aantal websites. Hiermee heeft u dus een bereik van een miljoenen publiek voor uw te koop staande woning.
* Vraag bij uw lokale vestiging naar de mogelijkheden
Nieuwste reviews
-
Liesbeth van Rixtel
Ontzettend dankbaar ben ik dat ik Piet de Haan als aankoopmakelaar heb gehad. Dankzij zijn kennis en contacten heb ik snel een woning kunnen...
-
Jan-willem Rozema
Piet heeft ons in de eerste plaats geholpen als aankoopmakelaar. Geen bezichtiging was Piet teveel en zijn pro actieve houding konden wij on...
-
Snajpi
**Onmisbare Hulp en Topperservice - Piet De Haan van WitteWoning Makelaars** Mijn vrouw en ik willen onze diepe dankbaarheid uitspreken voo...